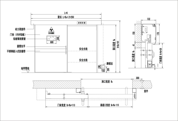
防輻射門、醫用門

1.內襯鉛板,鉛當量為1-3mmPa,可遮蔽X射線,防止多種有害射線泄露對人體造成傷害,通過中國疾病預防控制中心輻射防護與核安全醫學所檢測,符合診斷X射線防護要求(輻安檢字2006-087號)。
2.門體型材及動力梁裝有密封條,能滿足醫院等場所的潔凈要求。
3.控制系統完全按照醫用電氣系統安全要求設計,并可根據醫院方的要求采用多種控制方式,不對同一環境中的其它設備形成電磁干擾。
4.可采用平移或氣密式自動門做載體,可采用外掛或嵌入式安裝方式,美觀大方。
| 開門運行速度 | 250~500mm/s(可調) |
| 閉門運行速度 | 250~500mm/s(可調) |
| 開放時間 | 2~20s(可調) |
| 緊閉力F | >70N) |
| 手動推力 | <100N |
| 整機消耗功率 | <150W |


全國服務熱線:

地址:山東省濟南市歷城區祝甸北路8號
手機:4006091213
郵箱:moenke@dingtalk.com
Copyright ? 2024 山東摩恩科門業有限公司